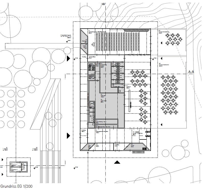
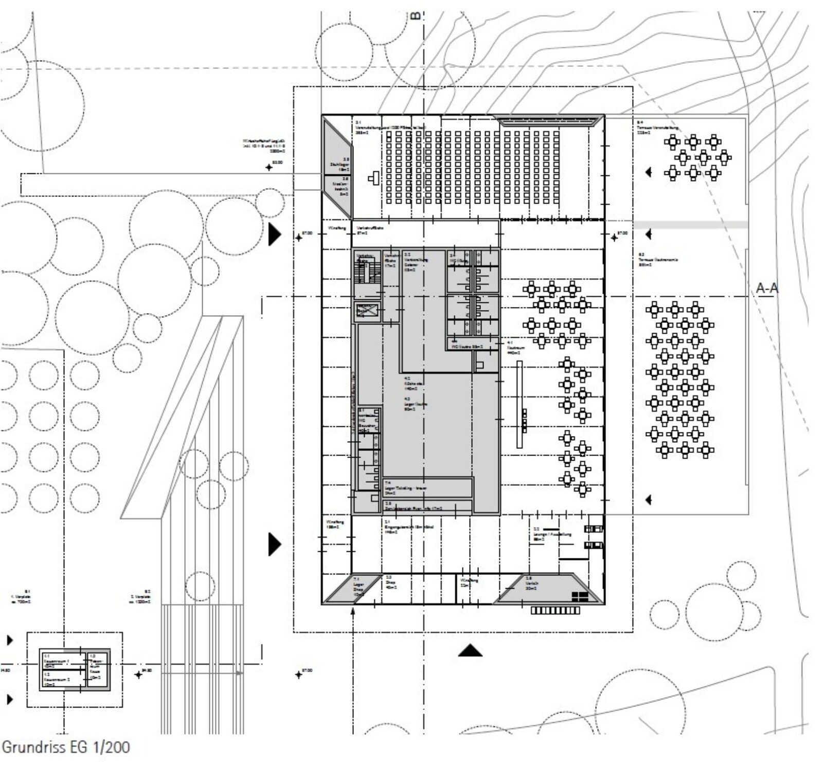
The ‘Gardens of the World’ are part of the Berlin-Marzahn Recreation Park (Erholungspark Marzahn). Extensive meadows, flower beds and walking paths are spread over 43 hectares of the spacious park grounds.

HRA were commissioned during 2014-2015 to develop a design for a new Visitor Reception Building at this location.

More Zoological/Botanical Garden Biomes Projects